Casa semindipendente in vendita

Zubiena, Frazione Parogno - Parogno
€ 24.500
6 locali 6 locali
175 Mq 175 Mq
1 bagno 1 bagno

Casa semindipendente in vendita

Zubiena, Frazione Parogno - Parogno

Descrizione annuncio

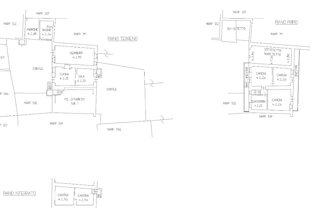
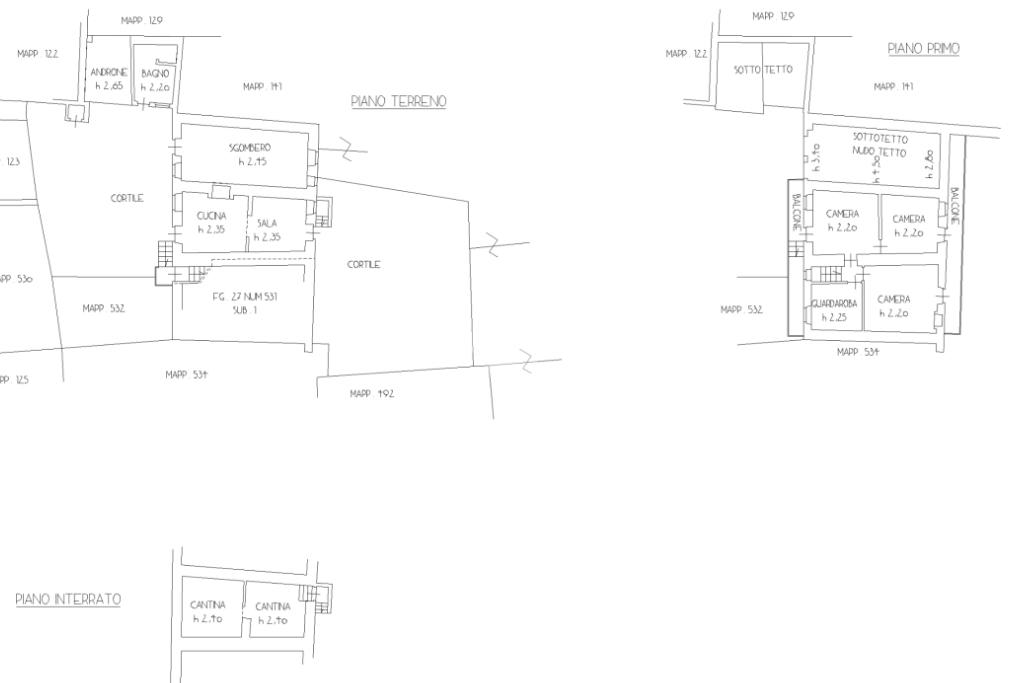
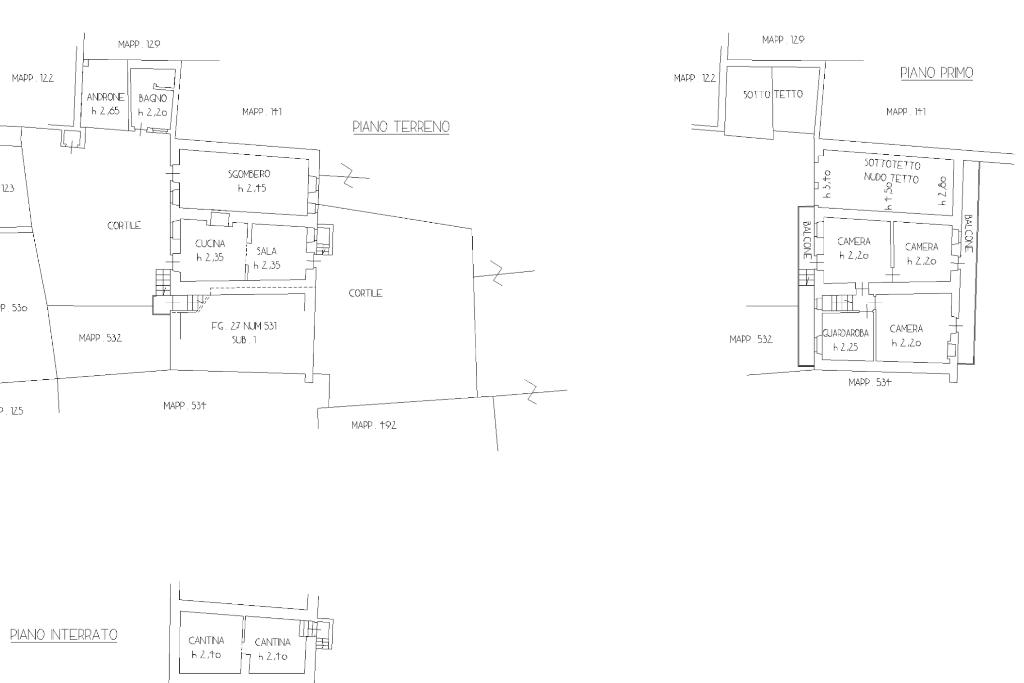
In frazione Parogno, casa semindipendente disposta su tre livelli e da ristrutturare. Il piano terra ospita la zona giorno, costituita da cucina e soggiorno ad ambiente unico con elegante camino con accesso al giardino privato posto sul retro della casa. Da quest’ultimo, mediante una scala esterna è possibile raggiungere i due locali cantina nel locale seminterrato. Invece, il piano primo accessibile mediante una scala esterna conduce alla zona notte. Quest’ultima conta di tre camere da letto ed un locale guardaroba. Sono presenti due balconi, uno rivolto verso la facciata della casa e uno sul retro. A fianco alla casa, sono presenti un locale di deposito al piano terra ed un locale sottotetto al piano primo, che offre la possibilità di poter eventualmente allargare l’unità abitativa. Inoltre, è presente anche una tettoia con un bagno esterno al piano terra e sottotetto al piano superiore. Di quest’ultima il tetto è nuovo. Il riscaldamento è dato dalle canne fumarie. Inoltre, sono presenti anche un giardino privato posto di fronte alla casa, ma gravato da diritto di passaggio e terreni boschivi staccati dalla casa per una metratura totale di 13.170 mq circa.

Mostra tutto

Nelle vicinanze

Farmacia Farmacia
Farmacia
2,6 Km
Negozi Negozi
Panificio Detoma
1,2 Km
Negozi
2,6 Km
Bar Bar
L'universo di Claudia
1,3 Km
Ristoranti Ristoranti
Il boschetto
1,0 Km
Pizzeria Bar Trattoria Il Cantuccio
1,3 Km
Agriturismo Prà Gross
2,1 Km
Trattoria Era Ora
2,2 Km
Ristorante della Serra
2,7 Km
Mostra tutto

Caratteristiche

Rif.:
61155751
Piano:
2 di 3 (Piano su più livelli)
Balconi:
2
Camere da letto:
4
Arredamento:
Assente
Condizionamento:
Assente
Mostra tutto
Prezzo Prezzo
€ 24.500
Rata mutuo Rata mutuo
€ 116 / mese
Spese annue Spese annue
€ 0
Proponi il tuo prezzoProponi il tuo prezzo

Classe Energetica

G
G
G
G
G
G
G
G
G
EP globale non rinnovabile:
367.21 kW h/m² anno
EP globale rinnovabile:
0.00 kW h/m² anno
EP invernale del fabbricato:
EP estiva del fabbricato:
Anno di costruzione:
1908
Riscaldamento:
Autonomo
Tipo impianto:
A stufa
Tipo alimentazione:
Aria

Ti interessa visionare l'immobile?

Fissa un appuntamento  Fissa un appuntamento

Richiedi informazioni

Clicca su Leggi per aprire l'informativa
* Questi campi sono obbligatori

Calcola il tuo mutuo

Semplice e senza impegno
Anticipo

( % )
Mutuo

( % )

pochi semplici passi

inserisci i tuoi dati
Questionario completato
Grazie per aver richiesto un appuntamento senza impegno con un nostro Consulente del Credito e Assicurativo.

Hai inserito correttamente tutti i dati necessari e a breve riceverai una e-mail con un link da convalidare per inviare i tuoi dati.
Affiliato
Studio Cavaglia' Sas
Via Mainelli, 17 13881 Cavaglià (BI)

Il nostro staff


  • Francesco Capietto
    Affiliato

  • Marina Cofano
    Coordinatrice

  • Cristina Gabriela Paraschiveanu
    Collaboratrice

  • Fabrizio Ariti
    Responsabile
Via Mainelli, 17 13881 Cavaglià (BI)
Zona: Cavaglia' - Viverone - Roppolo-Dorzano-Piverone-Alice Castello
Mostra su mappa
Orari: Dal Lunedì al Venerdì dalle 9:00 alle 12.30 e dalle 14.30 alle 19:30. Il Sabato dalle 9.00 alle 12.30 e dalle 14.30 alle 18.30
Affiliato
Studio Cavaglia' Sas
Via Mainelli, 17 13881 Cavaglià (BI)

2025 Tecnocasa Franchising S.p.A. - P. IVA 08365160152 - Via Monte Bianco 60/A 20089 Rozzano (MI). Ogni agenzia ha un proprio titolare ed è autonoma. Privacy policy | Policy utilizzo | Cookie policy