Villa singola in vendita

Viverone, Via Sp228
€ 180.000
5 locali 5 locali
112 Mq 112 Mq
1 bagno 1 bagno

Villa singola in vendita

Viverone, Via Sp228

Descrizione annuncio

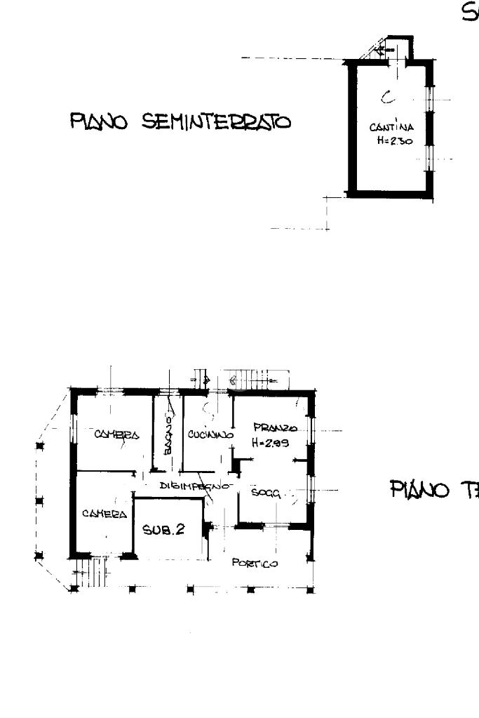
Lungo la strada che conduce a Piverone, con vista lago, villa singola di generosa metratura disposta su due livelli. Attualmente, il piano primo è da ultimare poichè si trova al grezzo. Il piano terra, accessibile mediante un elegante portico, conduce alla zona abitativa. La zona giorno è composta da cucina abitabile, separata dal locale soggiorno/sala da pranzo. Invece, la zona notte conta di una camera matrimoniale ed una singola ed un bagno con vasca e finestra. Il piano primo, accessibile mediante una scala in cemento conduce alla zona da ultimare. Quest'ultima è costituita da un elegante locale cucina in muratura, separato dal locale sala da pranzo, entrambi con accesso al terrazzo situato frontalmente alla casa. Completa la zona giorno un soggiorno con elegante camino. Invece, la zona notte è costituita da due camere da letto e da un bagno progettato per avere la jacuzzi. Sono già stati passati i fili per l'impianto elettrico ed il riscaldamento è a pavimento, mentre al piano terra sono con termosifoni a metano. Sono presenti le canne fumarie. Inoltre, l'impianto idraulico del bagno al piano primo è stato rifatto negli anni '90. Gli infissi del piano terra sono in alluminio e dotati di doppi vetri. Il tetto è stato coibentato e le pareti del piano primo. Esternamente è presente uno spazioso giardino privato. A corredo della proprietà vi sono un locale cantina nel seminterrato dove è presente un pozzo con impianto per irrigazione e una tettoia di 25 mq. L'accesso alla proprietà si ha mediante un cancello elettrico.

Mostra tutto

Nelle vicinanze

Trasporto pubblico Trasporto pubblico
Viverone Provinciale-Posta
Viverone Provinciale-Posta
1,2 Km
Trasporto pubblico
1,3 Km
Ricariche auto elettriche Ricariche auto elettriche
Viverone Lungo Lago | EnelX
1,5 Km
Viverone Renzo Zola | EnelX
1,8 Km
Viverone Area Mercatale | EnelX
2,1 Km
Farmacia Farmacia
Farmacia Ruffino
1,5 Km
Farmacia
2,0 Km
Farmacia Paganin
2,7 Km
Negozi Negozi
Panificio Vricciarello
1,6 Km
Panetteria Nicolello
1,6 Km
Negozi
1,7 Km
Alimentari Market Bertola & C. Snc
3,0 Km
Bar Bar
Bikers Bar
1,3 Km
Zanzi Ristopizza
1,5 Km
Zanzi Bar
1,6 Km
Eden
1,6 Km
La Marinella
1,6 Km
Ristoranti Ristoranti
Hotel Ristorante Taverna Verde
780 m
Impero Romano
970 m
L'idea
1,0 Km
Agriturismo La Schiavenza
1,1 Km
Locanda del Lago
1,4 Km
Mostra tutto

Caratteristiche

Rif.:
61184431
Piano:
2 di 2 (Piano su più livelli)
Box:
1
Balconi:
1
Terrazzi:
1
Camere da letto:
2
Mostra tutto
Prezzo Prezzo
€ 180.000
Rata mutuo Rata mutuo
€ 848 / mese
Spese annue Spese annue
€ 0
Proponi il tuo prezzoProponi il tuo prezzo

Classe Energetica

G
G
G
G
G
G
G
G
G
EP globale non rinnovabile:
375.05 kW h/m² anno
EP globale rinnovabile:
1.99 kW h/m² anno
EP invernale del fabbricato:
EP estiva del fabbricato:
Anno di costruzione:
1980
Riscaldamento:
Autonomo
Tipo impianto:
A radiatori
Tipo alimentazione:
Metano

Ti interessa visionare l'immobile?

Fissa un appuntamento  Fissa un appuntamento

Richiedi informazioni

Clicca su Leggi per aprire l'informativa
* Questi campi sono obbligatori

Calcola il tuo mutuo

Semplice e senza impegno
Anticipo

( % )
Mutuo

( % )

pochi semplici passi

inserisci i tuoi dati
Questionario completato
Grazie per aver richiesto un appuntamento senza impegno con un nostro Consulente del Credito e Assicurativo.

Hai inserito correttamente tutti i dati necessari e a breve riceverai una e-mail con un link da convalidare per inviare i tuoi dati.
Affiliato
Studio Cavaglia' Sas
Via Mainelli, 17 13881 Cavaglià (BI)

Il nostro staff


  • Francesco Capietto
    Affiliato

  • Marina Cofano
    Coordinatrice

  • Cristina Gabriela Paraschiveanu
    Collaboratrice

  • Fabrizio Ariti
    Responsabile
Via Mainelli, 17 13881 Cavaglià (BI)
Zona: Cavaglia' - Viverone - Roppolo-Dorzano-Piverone-Alice Castello
Mostra su mappa
Orari: Dal Lunedì al Venerdì dalle 9:00 alle 12.30 e dalle 14.30 alle 19:30. Il Sabato dalle 9.00 alle 12.30 e dalle 14.30 alle 18.30
Affiliato
Studio Cavaglia' Sas
Via Mainelli, 17 13881 Cavaglià (BI)

2026 Tecnocasa Franchising S.p.A. - P. IVA 08365160152 - Via Monte Bianco 60/A 20089 Rozzano (MI). Ogni agenzia ha un proprio titolare ed è autonoma. Privacy policy | Policy utilizzo | Cookie policy