Quadrilocale in vendita

Viverone, Via Gattinara
€ 95.000
3 locali 3 locali
145 Mq 145 Mq
2 bagni 2 bagni

Quadrilocale in vendita

Viverone, Via Gattinara

Descrizione annuncio

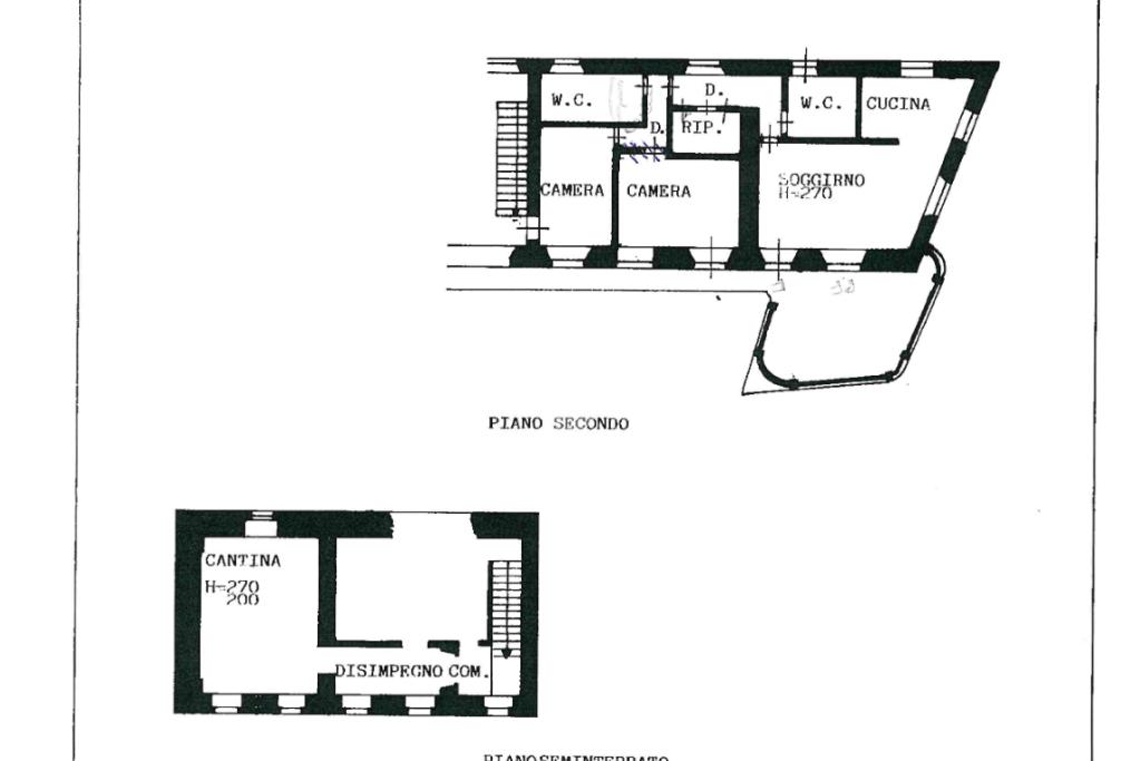
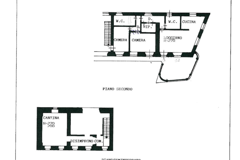
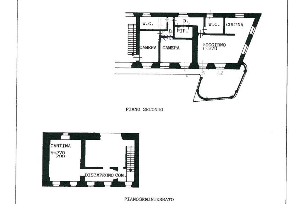
In zona centrale, appartamento situato al piano secondo di una palazzina con altre unità immobiliari ristrutturato tra fine degli anni 80 e l'inzio degli anni 90. L'accesso si ha mediante il balcone che si estende lungo la facciata della casa e si trasforma in un prezioso terrazzo dal quale si ha uno scorcio di vista lago. La zona giorno è composta da ampio soggiorno impreziosito da un elegante camino collegato con l'angolo cottura. Questo ambiente è dotato di pavimento in cotto. Invece, la zona notte conta di due camere da letto spaziose e due bagni, uno con doccia e uno con vasca entrambi con finestra. Gli infissi sono in legno e dotati di doppi vetri. Il riscaldamento è autonomo a metano ed è presente la canna fumaria.

Mostra tutto

Nelle vicinanze

Trasporto pubblico Trasporto pubblico
Trasporto pubblico
600 m
Viverone Provinciale-Posta
Viverone Provinciale-Posta
700 m
Ricariche auto elettriche Ricariche auto elettriche
Viverone Renzo Zola | EnelX
70 m
Viverone Area Mercatale | EnelX
410 m
Viverone Lungo Lago | EnelX
910 m
Farmacia Farmacia
Farmacia Ruffino
490 m
Farmacia Paganin
920 m
Negozi Negozi
Panetteria Nicolello
260 m
Negozi
380 m
Panificio Vricciarello
460 m
Bar Bar
Bar Centro
390 m
Zanzi Ristopizza
900 m
Bikers Bar
920 m
Ristoranti Ristoranti
Viver One Restaurant & Pizza
340 m
Ristorante Rolle
590 m
Ristorante Bar La Palafitta
940 m
La Brace
1,0 Km
Ristorante Tarello
1,0 Km
Mostra tutto

Caratteristiche

Rif.:
61195709
Piano:
2 di 2 (Piano alto)
Balconi:
1
Terrazzi:
1
Camere da letto:
2
Arredamento:
Assente
Mostra tutto
Prezzo Prezzo
€ 95.000
Rata mutuo Rata mutuo
€ 448 / mese
Spese annue Spese annue
€ 0
Proponi il tuo prezzoProponi il tuo prezzo

Classe Energetica

Questo immobile è esente da classe energetica
Anno di costruzione:
1900
Riscaldamento:
Autonomo
Tipo impianto:
A radiatori
Tipo alimentazione:
Metano

Ti interessa visionare l'immobile?

Fissa un appuntamento  Fissa un appuntamento

Richiedi informazioni

Clicca su Leggi per aprire l'informativa
* Questi campi sono obbligatori

Calcola il tuo mutuo

Semplice e senza impegno
Anticipo

( % )
Mutuo

( % )

pochi semplici passi

inserisci i tuoi dati
Questionario completato
Grazie per aver richiesto un appuntamento senza impegno con un nostro Consulente del Credito e Assicurativo.

Hai inserito correttamente tutti i dati necessari e a breve riceverai una e-mail con un link da convalidare per inviare i tuoi dati.
Affiliato
Studio Cavaglia' Sas
Via Mainelli, 17 13881 Cavaglià (BI)

Il nostro staff


  • Francesco Capietto
    Affiliato

  • Marina Cofano
    Coordinatrice

  • Cristina Gabriela Paraschiveanu
    Collaboratrice

  • Fabrizio Ariti
    Responsabile
Via Mainelli, 17 13881 Cavaglià (BI)
Zona: Cavaglia' - Viverone - Roppolo-Dorzano-Piverone-Alice Castello
Mostra su mappa
Orari: Dal Lunedì al Venerdì dalle 9:00 alle 12.30 e dalle 14.30 alle 19:30. Il Sabato dalle 9.00 alle 12.30 e dalle 14.30 alle 18.30
Affiliato
Studio Cavaglia' Sas
Via Mainelli, 17 13881 Cavaglià (BI)

2026 Tecnocasa Franchising S.p.A. - P. IVA 08365160152 - Via Monte Bianco 60/A 20089 Rozzano (MI). Ogni agenzia ha un proprio titolare ed è autonoma. Privacy policy | Policy utilizzo | Cookie policy