Villa singola in vendita

Roppolo, Via Strada del Riali
€ 412.000
7 locali 7 locali
188 Mq 188 Mq
2 bagni 2 bagni

Villa singola in vendita

Roppolo, Via Strada del Riali

Descrizione annuncio

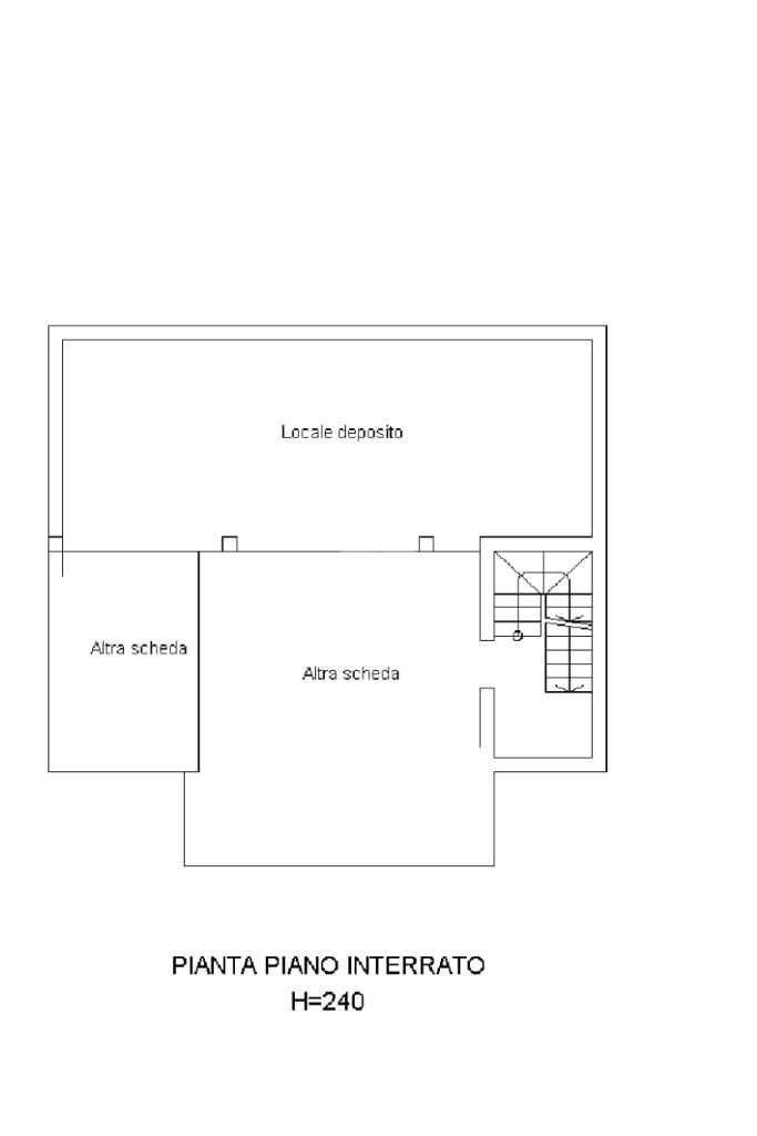
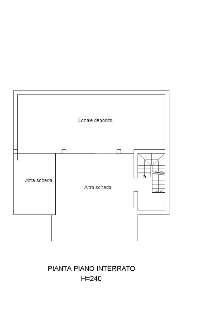
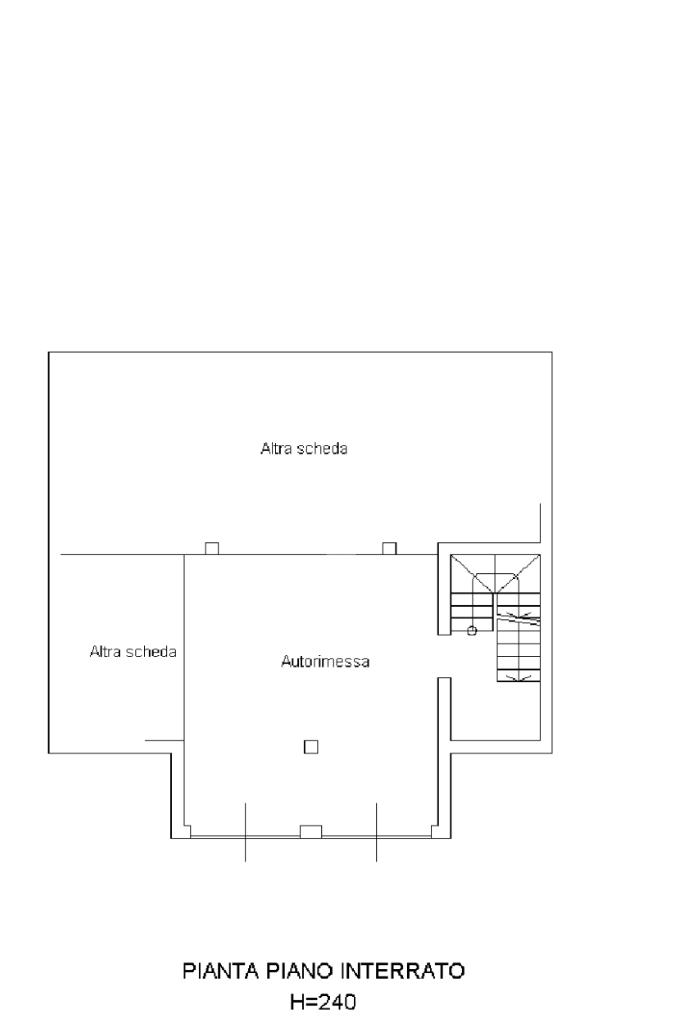
In posizione sopraelevata e panoramica con vista lago, villa singola costruita nel ‘2008 con materiali di qualita’ e disposta su tre livelli. La zona abitativa si sviluppa su un unico livello. La zona giorno è composta da cucina abitabile separata dallo spazioso soggiorno. Da quest’ultimo è possibile accedere al terrazzo dal quale si può apprezzare la vista lago. Invece, la zona notte conta di tre camere da letto, una delle quali con travi a vista. Completano il piano due bagni; uno con doccia e finestra e uno con vasca e finestra ed un locale ad uso lavanderia. Il locale seminterrato, conta di un locale ad uso box auto di 38 mq circa ed un locale deposito di 50 mq circa. Da questi ultimi, mediante una comoda scala coperta è possibile accedere al portico che conduce alla casa. Inoltre, è presente il sottotetto non abitabile. Gli infissi sono in legno e dotati di doppi vetri. Sono presenti le inferriate. Il riscaldamento è autonomo mediante caldaia a legna/ GPL collegata ai termosifoni. Esternamente si sviluppa un ampio giardino di 1760 mq circa in parte pianeggiante ed in parte disposto su un terrazzamento dove è presente l’orto. Inoltre, è presente anche un’area cortilizia. La villa conta di tre accessi, due mediante passo carraio ed uno mediante accesso pedonale.

Mostra tutto

Nelle vicinanze

Trasporto pubblico Trasporto pubblico
Cavaglià (Via Ivrea)
Cavaglià (Via Ivrea)
1,6 Km
Trasporto pubblico
1,9 Km
Ricariche auto elettriche Ricariche auto elettriche
Viverone Area Mercatale | EnelX
1,1 Km
Viverone Renzo Zola | EnelX
1,4 Km
Viverone Lungo Lago | EnelX
1,9 Km
U2 Supermercato Dorzano | EnelX
2,5 Km
Scuole Scuole
Scuola Media
2,4 Km
Farmacia Farmacia
Farmacia Paganin
710 m
Farmacia Ruffino
1,7 Km
Farmacia Biondi
2,2 Km
Farmacia
2,5 Km
Supermercati Supermercati
Di Meglio
2,5 Km
Negozi Negozi
Negozi
1,5 Km
Panificio Vricciarello
1,6 Km
Panetteria Nicolello
1,6 Km
Bar Bar
Bar Centro
1,5 Km
La Marinella
1,7 Km
Eden
1,7 Km
Zanzi Bar
1,8 Km
Zanzi Ristopizza
1,8 Km
Ristoranti Ristoranti
La Brace
390 m
Ristorante Tarello
680 m
La Veranda
1,3 Km
Viver One Restaurant & Pizza
1,4 Km
Birreria Ristorante Borgo Nuovo
1,5 Km
Mostra tutto

Caratteristiche

Rif.:
61126919
Piano:
1 di 1 (Piano rialzato)
Box:
1
Terrazzi:
1
Camere da letto:
3
Arredamento:
Assente
Mostra tutto
Prezzo Prezzo
€ 412.000
Rata mutuo Rata mutuo
€ 1.945 / mese
Spese annue Spese annue
€ 0
Proponi il tuo prezzoProponi il tuo prezzo

Classe Energetica

A1
A1
A1
A1
A1
A1
A1
A1
A1
EP globale non rinnovabile:
122.61 kW h/m² anno
EP globale rinnovabile:
2.11 kW h/m² anno
EP invernale del fabbricato:
EP estiva del fabbricato:
Anno di costruzione:
2008
Riscaldamento:
Autonomo
Tipo impianto:
A radiatori
Tipo alimentazione:
GPL

Ti interessa visionare l'immobile?

Fissa un appuntamento  Fissa un appuntamento

Richiedi informazioni

Clicca su Leggi per aprire l'informativa
* Questi campi sono obbligatori

Calcola il tuo mutuo

Semplice e senza impegno
Anticipo

( % )
Mutuo

( % )

pochi semplici passi

inserisci i tuoi dati
Questionario completato
Grazie per aver richiesto un appuntamento senza impegno con un nostro Consulente del Credito e Assicurativo.

Hai inserito correttamente tutti i dati necessari e a breve riceverai una e-mail con un link da convalidare per inviare i tuoi dati.
Affiliato
Studio Cavaglia' Sas
Via Mainelli, 17 13881 Cavaglià (BI)

Il nostro staff


  • Francesco Capietto
    Affiliato

  • Marina Cofano
    Coordinatrice

  • Cristina Gabriela Paraschiveanu
    Collaboratrice

  • Fabrizio Ariti
    Responsabile
Via Mainelli, 17 13881 Cavaglià (BI)
Zona: Cavaglia' - Viverone - Roppolo-Dorzano-Piverone-Alice Castello
Mostra su mappa
Orari: Dal Lunedì al Venerdì dalle 9:00 alle 12.30 e dalle 14.30 alle 19:30. Il Sabato dalle 9.00 alle 12.30 e dalle 14.30 alle 18.30
Affiliato
Studio Cavaglia' Sas
Via Mainelli, 17 13881 Cavaglià (BI)

2025 Tecnocasa Franchising S.p.A. - P. IVA 08365160152 - Via Monte Bianco 60/A 20089 Rozzano (MI). Ogni agenzia ha un proprio titolare ed è autonoma. Privacy policy | Policy utilizzo | Cookie policy