Casa semindipendente in vendita

Magnano, Frazione Piletta - Piletta
€ 39.000
6 locali 6 locali
164 Mq 164 Mq
2 bagni 2 bagni

Casa semindipendente in vendita

Magnano, Frazione Piletta - Piletta

Descrizione annuncio

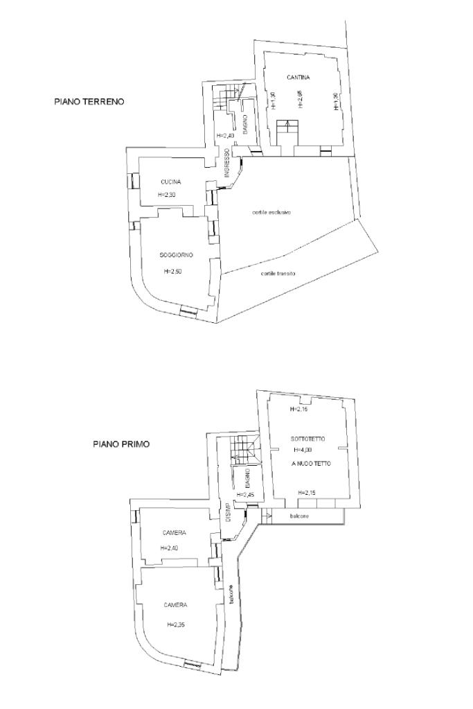
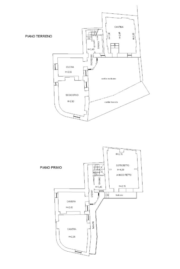
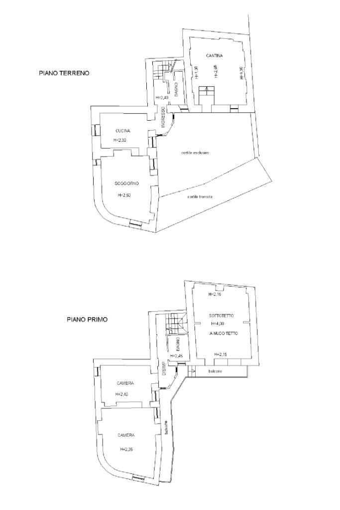
In frazione Piletta, casa semindipendente disposta su due livelli. Il piano terra ospita la zona giorno composta da spazioso soggiorno con elegante camino, separato dal locale cucina. Completa il piano un bagno con doccia e finestra. Invece, il piano primo accessibile mediante una comoda scala interna, conduce alla zona notte. Quest’ultima conta di due camere da letto ed un bagno con vasca e finestra. Inoltre, è presente un locale sottotetto accessibile esternamente che offre la possibilità grazie alla sua altezza di ricavare un'altra camera. Il riscaldamento attualmente è dato dalla canna fumaria, ma sono comunque presenti i termosifoni per eventuale impianto. A corredo della proprietà vi sono un’elegante cantina/tavernetta al piano terra impreziosita da volte in mattoni ed un cortile privato.

Mostra tutto

Nelle vicinanze

Trasporto pubblico Trasporto pubblico
Piverone (Piazza Lucca-Capolinea)
Piverone (Piazza Lucca-Capolinea)
2,5 Km
Piverone (Strada Nuova 36)
Piverone (Strada Nuova 36)
2,9 Km
Farmacia Farmacia
Farmacia
2,5 Km
Negozi Negozi
L'angolo del fornaio
2,5 Km
Alimentari Market Bertola & C. Snc
2,5 Km
Panificio Detoma
2,8 Km
Bar Bar
L'universo di Claudia
2,8 Km
Ristoranti Ristoranti
Trattoria Era Ora
1,1 Km
Bistrot Del Campanile
2,5 Km
Il boschetto
2,5 Km
Pizzeria Bar Trattoria Il Cantuccio
2,8 Km
Mostra tutto

Caratteristiche

Rif.:
61142116
Piano:
2 di 2 (Piano su più livelli)
Balconi:
1
Camere da letto:
2
Arredamento:
Assente
Condizionamento:
Assente
Mostra tutto
Prezzo Prezzo
€ 39.000
Rata mutuo Rata mutuo
€ 184 / mese
Spese annue Spese annue
€ 0
Proponi il tuo prezzoProponi il tuo prezzo

Classe Energetica

F
F
F
F
F
F
F
F
F
EP globale non rinnovabile:
221.07 kW h/m² anno
EP globale rinnovabile:
689.28 kW h/m² anno
EP invernale del fabbricato:
EP estiva del fabbricato:
Anno di costruzione:
1900
Riscaldamento:
Autonomo
Tipo impianto:
A stufa
Tipo alimentazione:
Aria

Ti interessa visionare l'immobile?

Fissa un appuntamento  Fissa un appuntamento

Richiedi informazioni

Clicca su Leggi per aprire l'informativa
* Questi campi sono obbligatori

Calcola il tuo mutuo

Semplice e senza impegno
Anticipo

( % )
Mutuo

( % )

pochi semplici passi

inserisci i tuoi dati
Questionario completato
Grazie per aver richiesto un appuntamento senza impegno con un nostro Consulente del Credito e Assicurativo.

Hai inserito correttamente tutti i dati necessari e a breve riceverai una e-mail con un link da convalidare per inviare i tuoi dati.
Affiliato
Studio Cavaglia' Sas
Via Mainelli, 17 13881 Cavaglià (BI)

Il nostro staff


  • Francesco Capietto
    Affiliato

  • Marina Cofano
    Coordinatrice

  • Cristina Gabriela Paraschiveanu
    Collaboratrice

  • Fabrizio Ariti
    Responsabile
Via Mainelli, 17 13881 Cavaglià (BI)
Zona: Cavaglia' - Viverone - Roppolo-Dorzano-Piverone-Alice Castello
Mostra su mappa
Orari: Dal Lunedì al Venerdì dalle 9:00 alle 12.30 e dalle 14.30 alle 19:30. Il Sabato dalle 9.00 alle 12.30 e dalle 14.30 alle 18.30
Affiliato
Studio Cavaglia' Sas
Via Mainelli, 17 13881 Cavaglià (BI)

2026 Tecnocasa Franchising S.p.A. - P. IVA 08365160152 - Via Monte Bianco 60/A 20089 Rozzano (MI). Ogni agenzia ha un proprio titolare ed è autonoma. Privacy policy | Policy utilizzo | Cookie policy