Casa semindipendente in vendita

Dorzano, Via Giovanni Leto
€ 182.000
12 locali 12 locali
356 Mq 356 Mq
2 bagni 2 bagni

Casa semindipendente in vendita

Dorzano, Via Giovanni Leto

Descrizione annuncio

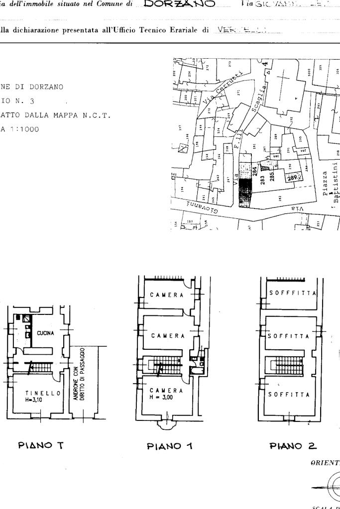
In centro paese, casa semindipendente disposta su livelli di ampia metratura. Il piano terra è costituito dalla zona giorno composta da cucina abitabile, separata da due locali soggiorno entrambi impreziositi da un elegante camino. Completa il piano una sala da pranzo ed un bagno con doccia e finestra. Invece, il piano primo accessibile mediante due scale interne conduce alla zona notte. Quest’ultima conta di cinque camere da letto, una delle quali con accesso su un balconcino. Inoltre, è presente un balcone che si estende lungo la facciata della casa. Completa il piano un bagno con vasca e finestra. Infine, il piano secondo è costituito da numerosi locali sottotetto. Inoltre, nel locale seminterrato è presente una cantina. Il riscaldamento è autonomo a metano e anche mediante due camini, uno dei quali ventilato e da una stufa a pellet. A corredo della proprietà vi sono una tettoia di ampia metratura di 78 mq circa, due box auto di 19 mq circa e 77 mq circa ed un ampio cortile privato. L’accesso alla proprietà si ha mediante accesso pedonale e carraio dalla piazza del Comune.

Mostra tutto

Nelle vicinanze

Trasporto pubblico Trasporto pubblico
Salussola
Salussola
2,6 Km
Dorzano (SR 143-Bivio)
Dorzano (SR 143-Bivio)
530 m
Cavaglià (Piazza Ponteri-Via Vercellone)
Cavaglià (Piazza Ponteri-Via Vercellone)
2,3 Km
Ricariche auto elettriche Ricariche auto elettriche
U2 Supermercato Dorzano | EnelX
540 m
Viverone Renzo Zola | EnelX
3,0 Km
Scuole Scuole
Scuola Media
2,4 Km
Scuola Elementare
2,7 Km
Scuola Media Statale Don Francesco Cabrio
2,8 Km
Farmacia Farmacia
Farmacia
50 m
Farmacia Paganin
2,3 Km
Farmacia Biondi
2,5 Km
Supermercati Supermercati
Di Meglio
510 m
Negozi Negozi
Negozi
2,1 Km
Bar Bar
La Rotonda
550 m
Ristoranti Ristoranti
Bue Rosso
680 m
Samilu
1,2 Km
Agriturismo
1,2 Km
Ristoranti
1,4 Km
Agriturismo Cascina Torrine
2,0 Km
Mostra tutto

Caratteristiche

Rif.:
61123449
Piano:
3 di 3 (Piano su più livelli)
Box:
2
Balconi:
2
Camere da letto:
5
Arredamento:
Assente
Mostra tutto
Prezzo Prezzo
€ 182.000
Rata mutuo Rata mutuo
€ 859 / mese
Spese annue Spese annue
€ 0
Proponi il tuo prezzoProponi il tuo prezzo

Classe Energetica

F
F
F
F
F
F
F
F
F
EP globale non rinnovabile:
289.25 kW h/m² anno
EP invernale del fabbricato:
EP estiva del fabbricato:
Anno di costruzione:
1900
Riscaldamento:
Autonomo
Tipo impianto:
A radiatori
Tipo alimentazione:
Metano

Ti interessa visionare l'immobile?

Fissa un appuntamento  Fissa un appuntamento

Richiedi informazioni

Clicca su Leggi per aprire l'informativa
* Questi campi sono obbligatori

Calcola il tuo mutuo

Semplice e senza impegno
Anticipo

( % )
Mutuo

( % )

pochi semplici passi

inserisci i tuoi dati
Questionario completato
Grazie per aver richiesto un appuntamento senza impegno con un nostro Consulente del Credito e Assicurativo.

Hai inserito correttamente tutti i dati necessari e a breve riceverai una e-mail con un link da convalidare per inviare i tuoi dati.
Affiliato
Studio Cavaglia' Sas
Via Mainelli, 17 13881 Cavaglià (BI)

Il nostro staff


  • Francesco Capietto
    Affiliato

  • Marina Cofano
    Coordinatrice

  • Cristina Gabriela Paraschiveanu
    Collaboratrice

  • Fabrizio Ariti
    Responsabile
Via Mainelli, 17 13881 Cavaglià (BI)
Zona: Cavaglia' - Viverone - Roppolo-Dorzano-Piverone-Alice Castello
Mostra su mappa
Orari: Dal Lunedì al Venerdì dalle 9:00 alle 12.30 e dalle 14.30 alle 19:30. Il Sabato dalle 9.00 alle 12.30 e dalle 14.30 alle 18.30
Affiliato
Studio Cavaglia' Sas
Via Mainelli, 17 13881 Cavaglià (BI)

2025 Tecnocasa Franchising S.p.A. - P. IVA 08365160152 - Via Monte Bianco 60/A 20089 Rozzano (MI). Ogni agenzia ha un proprio titolare ed è autonoma. Privacy policy | Policy utilizzo | Cookie policy