Ter. agricolo in vendita

Cerrione, Via mazzini
€ 129.000
233287 Mq 233287 Mq

Ter. agricolo in vendita

Cerrione, Via mazzini

Descrizione annuncio

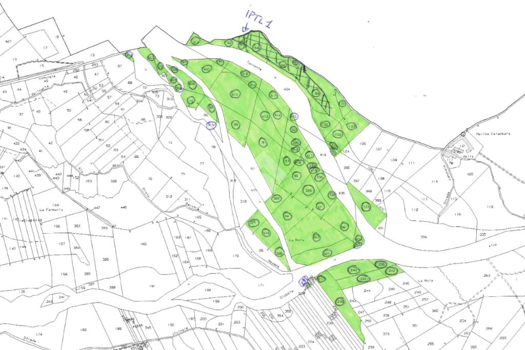
Immerso nelle campagne di Cerrione, vicino agli argini del torrente, ampio appezzamento di terreno agricolo di 233.287 mq circa in parte agricolo, ma prettamente boschivo. 7.862,94 mq circa attualmente secondo il piano regolatore sono adibiti ad uso per impianti privati per il tempo libero. In quest’area è possibile edificare piccole costruzioni in legno rimovibili di altezza non superiore a 2,50 m per uso deposito o ricovero. L’utilizzazione fondiaria non potrà essere superiore a 0,20 mq/mq. Una parte del lotto è raggiungibile comodamente con l’auto dalla strada interna del paese ed è possibile parcheggiare. Attualmente viene venduto in blocco, ma è possibile anche una vendita separata in due lotti distinti.

Mostra tutto

Nelle vicinanze

Trasporto pubblico Trasporto pubblico
Cerrione (Zanca-Dir 1)
Cerrione (Zanca-Dir 1)
1,3 Km
Cerrione (Zanca-Dir 2)
Cerrione (Zanca-Dir 2)
1,3 Km
Vergnasco
Vergnasco
2,2 Km
Farmacia Farmacia
Farmacia
2,0 Km
Farmacia del sole
2,8 Km
Mostra tutto

Caratteristiche

Rif.:
61147688
Piano:
Basso
Arredamento:
Assente
Condizionamento:
Assente
Ascensore:
No
Riscaldamento:
Assente
Mostra tutto
Prezzo Prezzo
€ 129.000
Rata mutuo Rata mutuo
€ 609 / mese
Spese annue Spese annue
€ 0
Proponi il tuo prezzoProponi il tuo prezzo

Classe Energetica

Questo immobile è esente da classe energetica
Anno di costruzione:
1900
Riscaldamento:
Assente

Ti interessa visionare l'immobile?

Fissa un appuntamento  Fissa un appuntamento

Richiedi informazioni

Clicca su Leggi per aprire l'informativa
* Questi campi sono obbligatori

Calcola il tuo mutuo

Semplice e senza impegno
Anticipo

( % )
Mutuo

( % )

pochi semplici passi

inserisci i tuoi dati
Questionario completato
Grazie per aver richiesto un appuntamento senza impegno con un nostro Consulente del Credito e Assicurativo.

Hai inserito correttamente tutti i dati necessari e a breve riceverai una e-mail con un link da convalidare per inviare i tuoi dati.
Affiliato
Studio Cavaglia' Sas
Via Mainelli, 17 13881 Cavaglià (BI)

Il nostro staff


  • Francesco Capietto
    Affiliato

  • Marina Cofano
    Coordinatrice

  • Cristina Gabriela Paraschiveanu
    Collaboratrice

  • Fabrizio Ariti
    Responsabile
Via Mainelli, 17 13881 Cavaglià (BI)
Zona: Cavaglia' - Viverone - Roppolo-Dorzano-Piverone-Alice Castello
Mostra su mappa
Orari: Dal Lunedì al Venerdì dalle 9:00 alle 12.30 e dalle 14.30 alle 19:30. Il Sabato dalle 9.00 alle 12.30 e dalle 14.30 alle 18.30
Affiliato
Studio Cavaglia' Sas
Via Mainelli, 17 13881 Cavaglià (BI)

2025 Tecnocasa Franchising S.p.A. - P. IVA 08365160152 - Via Monte Bianco 60/A 20089 Rozzano (MI). Ogni agenzia ha un proprio titolare ed è autonoma. Privacy policy | Policy utilizzo | Cookie policy