Casa semindipendente in vendita

Cerrione, Via Roma
€ 39.000
Prezzo aggiornato
4 locali 4 locali
113 Mq 113 Mq
1 bagno 1 bagno

Casa semindipendente in vendita

Cerrione, Via Roma

Descrizione annuncio

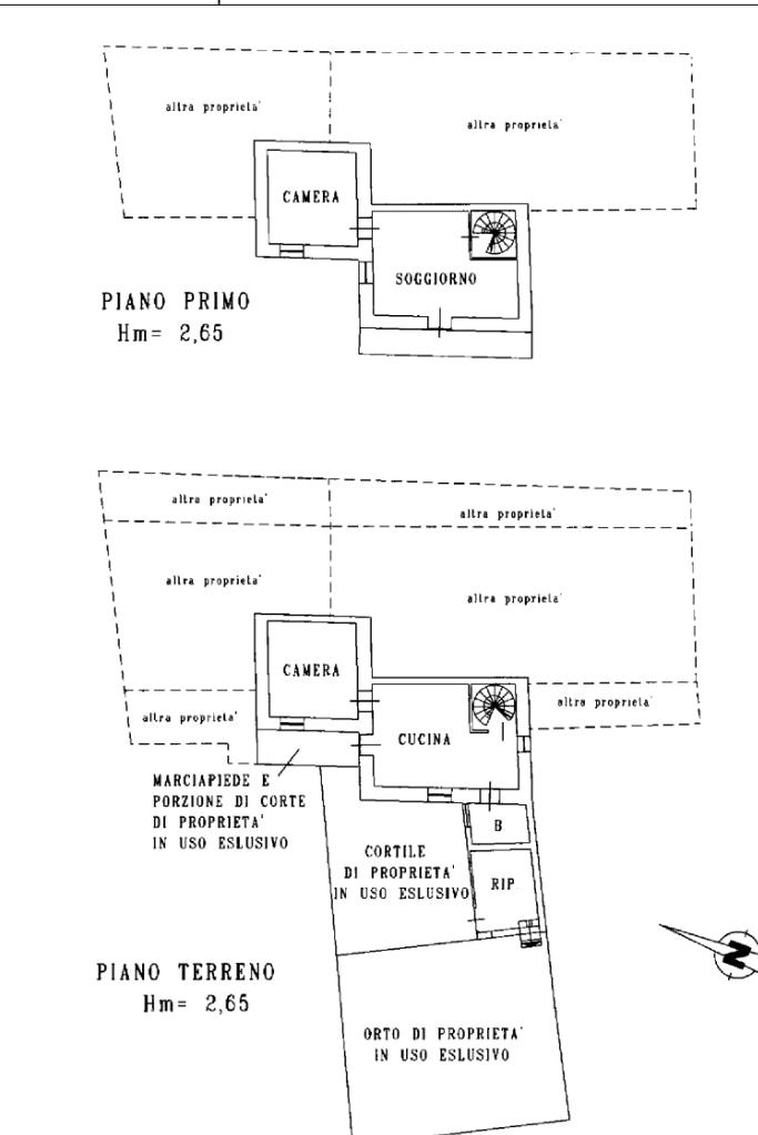
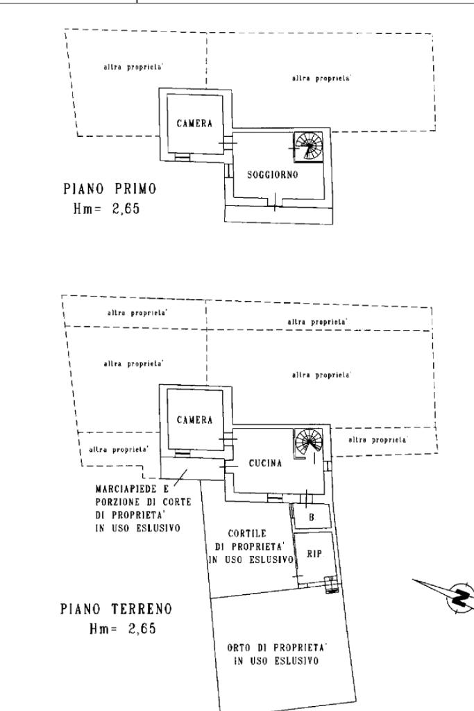
In centro paese, casa semindipendente disposta su due livelli da ristrutturare. Il piano terra ospita la zona giorno composta da cucina abitabile separata dal locale soggiorno impreziosito da un elegante camino in mattoni. Sono presenti due stufe a pellet. Completa il piano un bagno con finestra e doccia. Il piano primo, accessibile mediante una comoda scala a chiocciola, conduce alla zona notte. Quest'ultima conta di una camera da letto matrimoniale con accesso sul balcone che si estende lungo la facciata della casa ed una camera da letto singola. Esternamente, è presente un locale ripostiglio dal quale è possibile accedere al giardino privato.

Mostra tutto

Nelle vicinanze

Trasporto pubblico Trasporto pubblico
Cerrione (Zanca-Dir 1)
Cerrione (Zanca-Dir 1)
1,3 Km
Cerrione (Zanca-Dir 2)
Cerrione (Zanca-Dir 2)
1,3 Km
Farmacia Farmacia
Farmacia
2,8 Km
Mostra tutto

Caratteristiche

Rif.:
61157890
Piano:
2 di 2 (Piano su più livelli)
Balconi:
1
Camere da letto:
2
Arredamento:
Assente
Condizionamento:
Assente
Mostra tutto
Prezzo Prezzo
€ 39.000
Rata mutuo Rata mutuo
€ 184 / mese
Spese annue Spese annue
€ 0
Proponi il tuo prezzoProponi il tuo prezzo

Classe Energetica

F
F
F
F
F
F
F
F
F
EP globale non rinnovabile:
183.85 kW h/m² anno
EP globale rinnovabile:
518.53 kW h/m² anno
EP invernale del fabbricato:
EP estiva del fabbricato:
Anno di costruzione:
1940
Riscaldamento:
Autonomo
Tipo impianto:
A stufa
Tipo alimentazione:
Aria

Prezzo ridotto di €1 (14%%)

Ti interessa visionare l'immobile?

Fissa un appuntamento  Fissa un appuntamento

Richiedi informazioni

Clicca su Leggi per aprire l'informativa
* Questi campi sono obbligatori

Calcola il tuo mutuo

Semplice e senza impegno
Anticipo

( % )
Mutuo

( % )

pochi semplici passi

inserisci i tuoi dati
Questionario completato
Grazie per aver richiesto un appuntamento senza impegno con un nostro Consulente del Credito e Assicurativo.

Hai inserito correttamente tutti i dati necessari e a breve riceverai una e-mail con un link da convalidare per inviare i tuoi dati.
Affiliato
Studio Cavaglia' Sas
Via Mainelli, 17 13881 Cavaglià (BI)

Il nostro staff


  • Francesco Capietto
    Affiliato

  • Marina Cofano
    Coordinatrice

  • Cristina Gabriela Paraschiveanu
    Collaboratrice

  • Fabrizio Ariti
    Responsabile
Via Mainelli, 17 13881 Cavaglià (BI)
Zona: Cavaglia' - Viverone - Roppolo-Dorzano-Piverone-Alice Castello
Mostra su mappa
Orari: Dal Lunedì al Venerdì dalle 9:00 alle 12.30 e dalle 14.30 alle 19:30. Il Sabato dalle 9.00 alle 12.30 e dalle 14.30 alle 18.30
Affiliato
Studio Cavaglia' Sas
Via Mainelli, 17 13881 Cavaglià (BI)

2026 Tecnocasa Franchising S.p.A. - P. IVA 08365160152 - Via Monte Bianco 60/A 20089 Rozzano (MI). Ogni agenzia ha un proprio titolare ed è autonoma. Privacy policy | Policy utilizzo | Cookie policy