Quadrilocale in vendita

Cavaglià, Via Cesare Vercellone
€ 50.000
5 locali 5 locali
90 Mq 90 Mq
1 bagno 1 bagno

Quadrilocale in vendita

Cavaglià, Via Cesare Vercellone

Descrizione annuncio

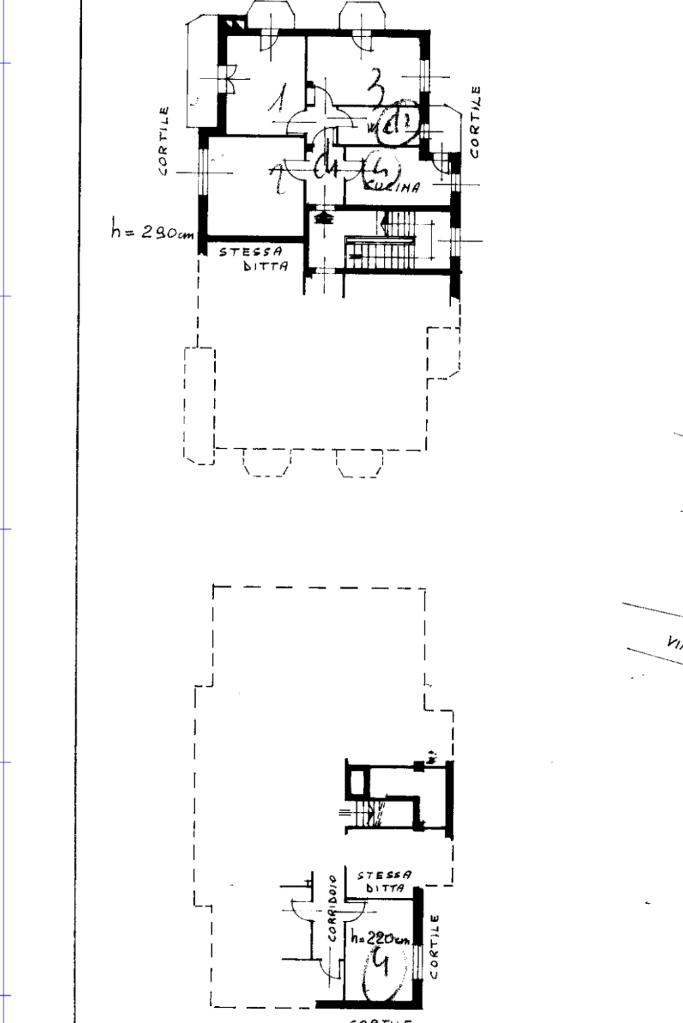
In centro paese, appartamento situato al piano secondo di una palazzina che conta di diverse unità abitative. L’ingresso dà su un corridoio che fa da disimpegno a tutti i locali. La zona giorno è costituita da una cucina abitabile con accesso su un balconcino, separata dall’elegante soggiorno con pavimento in parquet. La zona notte conta di una camera matrimoniale con accesso su un balcone spazioso in grado di ospitare un tavolo ed un balconcino, mentre l’altra camera ha accesso ad un altro balcone. Il bagno è stato ristrutturato nel 2023 ed è costituito da doccia e finestra. Il riscaldamento è autonomo a metano mediante caldaia a condensazione sostituita nel 2023 ed è presente anche la canna fumaria. Inoltre, vi è un condizionatore caldo/freddo nella camera matrimoniale. Nel 2022 sono state sostituite le tapparelle e gli infissi che sono in PVC e dotati di doppio vetro. E’ presente la porta blindata. A corredo della proprietà vi è un locale cantina ed un box auto. Le spese condominiali si aggirano intorno alle 1.250 euro circa. Il mobilio è compreso nel prezzo.

Mostra tutto

Nelle vicinanze

Trasporto pubblico Trasporto pubblico
Cavaglià (Piazza Ponteri)
Cavaglià (Piazza Ponteri)
240 m
Cavaglià (Piazza Ponteri-Via Vercellone)
Cavaglià (Piazza Ponteri-Via Vercellone)
280 m
Ricariche auto elettriche Ricariche auto elettriche
U2 Supermercato Dorzano | EnelX
2,1 Km
Scuole Scuole
Scuola Media
320 m
Farmacia Farmacia
Farmacia Biondi
130 m
Farmacia
2,5 Km
Farmacia Paganin
2,7 Km
Supermercati Supermercati
Di Meglio
2,1 Km
Negozi Negozi
Negozi
470 m
Bar Bar
La Rotonda
2,5 Km
Ristoranti Ristoranti
Tre Scalini
140 m
Osteria dell'Oca Bianca
320 m
Samilu
1,4 Km
Agriturismo Cascina Torrine
1,7 Km
Agriturismo Il Molino
2,3 Km
Mostra tutto

Caratteristiche

Rif.:
61156969
Piano:
2 di 2 (Piano alto)
Box:
1
Balconi:
3
Camere da letto:
2
Arredamento:
Completo
Mostra tutto
Prezzo Prezzo
€ 50.000
Rata mutuo Rata mutuo
€ 236 / mese
Spese annue Spese annue
€ 1.250
Proponi il tuo prezzoProponi il tuo prezzo

Classe Energetica

G
G
G
G
G
G
G
G
G
EP globale non rinnovabile:
335.71 kW h/m² anno
EP globale rinnovabile:
1.27 kW h/m² anno
EP invernale del fabbricato:
EP estiva del fabbricato:
Anno di costruzione:
1972
Riscaldamento:
Autonomo
Tipo impianto:
A radiatori
Tipo alimentazione:
Metano

Ti interessa visionare l'immobile?

Fissa un appuntamento  Fissa un appuntamento

Richiedi informazioni

Clicca su Leggi per aprire l'informativa
* Questi campi sono obbligatori

Calcola il tuo mutuo

Semplice e senza impegno
Anticipo

( % )
Mutuo

( % )

pochi semplici passi

inserisci i tuoi dati
Questionario completato
Grazie per aver richiesto un appuntamento senza impegno con un nostro Consulente del Credito e Assicurativo.

Hai inserito correttamente tutti i dati necessari e a breve riceverai una e-mail con un link da convalidare per inviare i tuoi dati.
Affiliato
Studio Cavaglia' Sas
Via Mainelli, 17 13881 Cavaglià (BI)

Il nostro staff


  • Francesco Capietto
    Affiliato

  • Marina Cofano
    Coordinatrice

  • Cristina Gabriela Paraschiveanu
    Collaboratrice

  • Fabrizio Ariti
    Responsabile
Via Mainelli, 17 13881 Cavaglià (BI)
Zona: Cavaglia' - Viverone - Roppolo-Dorzano-Piverone-Alice Castello
Mostra su mappa
Orari: Dal Lunedì al Venerdì dalle 9:00 alle 12.30 e dalle 14.30 alle 19:30. Il Sabato dalle 9.00 alle 12.30 e dalle 14.30 alle 18.30
Affiliato
Studio Cavaglia' Sas
Via Mainelli, 17 13881 Cavaglià (BI)

2025 Tecnocasa Franchising S.p.A. - P. IVA 08365160152 - Via Monte Bianco 60/A 20089 Rozzano (MI). Ogni agenzia ha un proprio titolare ed è autonoma. Privacy policy | Policy utilizzo | Cookie policy