Quadrilocale in vendita

Cavaglià, Via Vercellone
€ 68.000
5 locali 5 locali
83 Mq 83 Mq
1 bagno 1 bagno

Quadrilocale in vendita

Cavaglià, Via Vercellone

Descrizione annuncio

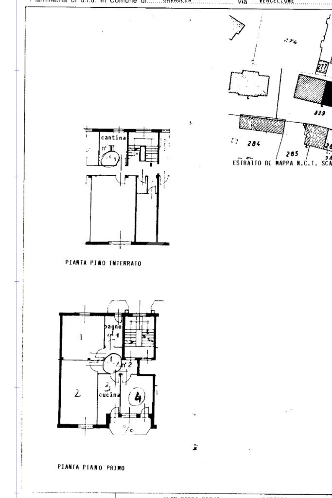
In centro paese, appartamento ristrutturato completamente nel 2021 situato al piano primo di una palazzina che conta di diverse unità abitative. L'ingresso dà su un piccolo disimpegno che suddivide i locali. La zona giorno è costituita da un angolo cottura con accesso sul balconcino separato dal locale soggiorno. Invece, la zona notte conta di due camere da letto, una delle due con accesso sullo stesso balcone su cui si affaccia il locale cucina e di un bagno con box doccia nuovo e finestra con accesso sul balconcino. Internamente, sono state sostituite le porte e i pavimenti. Il riscaldamento è autonomo a metano e gli infissi sono in PVC e dotati di doppi vetri. Valore aggiunto dell'appartamento è il fatto di avere la lavanderia al piano terra perchè grazie ai macchinari solleva le spese di riscaldamento. Inoltre. è stato rifatto impianto elettrico ed idraulico. A corredo della proprietà vi è un locale cantina, box auto e posto auto assegnato. Le spese condominiali si aggirano intorno alle 1.300 euro all'anno circa.

Mostra tutto

Nelle vicinanze

Trasporto pubblico Trasporto pubblico
Cavaglià (Piazza Ponteri)
Cavaglià (Piazza Ponteri)
230 m
Cavaglià (Piazza Ponteri-Via Vercellone)
Cavaglià (Piazza Ponteri-Via Vercellone)
280 m
Ricariche auto elettriche Ricariche auto elettriche
U2 Supermercato Dorzano | EnelX
2,1 Km
Scuole Scuole
Scuola Media
300 m
Farmacia Farmacia
Farmacia Biondi
130 m
Farmacia
2,5 Km
Farmacia Paganin
2,7 Km
Supermercati Supermercati
Di Meglio
2,1 Km
Negozi Negozi
Negozi
490 m
Bar Bar
La Rotonda
2,5 Km
Ristoranti Ristoranti
Tre Scalini
160 m
Osteria dell'Oca Bianca
330 m
Samilu
1,4 Km
Agriturismo Cascina Torrine
1,7 Km
Agriturismo Il Molino
2,2 Km
Mostra tutto

Caratteristiche

Rif.:
61131681
Piano:
1 di 2 (Piano medio)
Box:
1
Balconi:
2
Camere da letto:
2
Arredamento:
Assente
Mostra tutto
Prezzo Prezzo
€ 68.000
Rata mutuo Rata mutuo
€ 321 / mese
Spese annue Spese annue
€ 1.800
Proponi il tuo prezzoProponi il tuo prezzo

Classe Energetica

D
D
D
D
D
D
D
D
D
EP globale non rinnovabile:
119.21 kW h/m² anno
EP globale rinnovabile:
3.29 kW h/m² anno
EP invernale del fabbricato:
EP estiva del fabbricato:
Anno di costruzione:
1967
Riscaldamento:
Centralizzato
Tipo impianto:
A radiatori
Tipo alimentazione:
Metano

Ti interessa visionare l'immobile?

Fissa un appuntamento  Fissa un appuntamento

Richiedi informazioni

Clicca su Leggi per aprire l'informativa
* Questi campi sono obbligatori

Calcola il tuo mutuo

Semplice e senza impegno
Anticipo

( % )
Mutuo

( % )

pochi semplici passi

inserisci i tuoi dati
Questionario completato
Grazie per aver richiesto un appuntamento senza impegno con un nostro Consulente del Credito e Assicurativo.

Hai inserito correttamente tutti i dati necessari e a breve riceverai una e-mail con un link da convalidare per inviare i tuoi dati.
Affiliato
Studio Cavaglia' Sas
Via Mainelli, 17 13881 Cavaglià (BI)

Il nostro staff


  • Francesco Capietto
    Affiliato

  • Marina Cofano
    Coordinatrice

  • Cristina Gabriela Paraschiveanu
    Collaboratrice

  • Fabrizio Ariti
    Responsabile
Via Mainelli, 17 13881 Cavaglià (BI)
Zona: Cavaglia' - Viverone - Roppolo-Dorzano-Piverone-Alice Castello
Mostra su mappa
Orari: Dal Lunedì al Venerdì dalle 9:00 alle 12.30 e dalle 14.30 alle 19:30. Il Sabato dalle 9.00 alle 12.30 e dalle 14.30 alle 18.30
Affiliato
Studio Cavaglia' Sas
Via Mainelli, 17 13881 Cavaglià (BI)

2026 Tecnocasa Franchising S.p.A. - P. IVA 08365160152 - Via Monte Bianco 60/A 20089 Rozzano (MI). Ogni agenzia ha un proprio titolare ed è autonoma. Privacy policy | Policy utilizzo | Cookie policy