Bifamiliare in vendita

Alice Castello, Via Selva
€ 395.000
6 locali 6 locali
304 Mq 304 Mq
4 bagni 4 bagni

Bifamiliare in vendita

Alice Castello, Via Selva

Descrizione annuncio

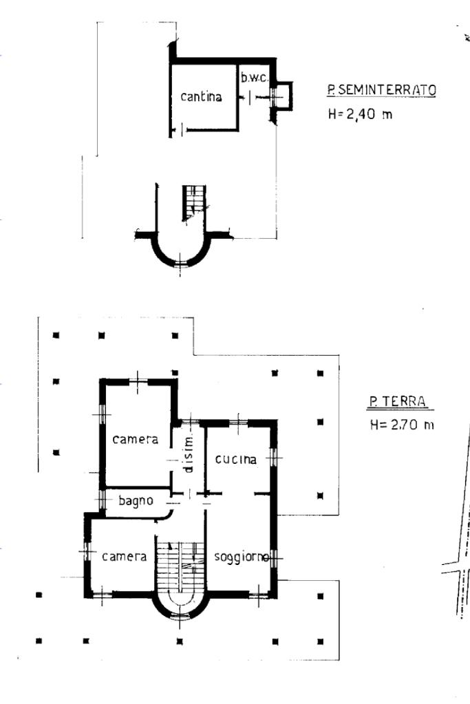
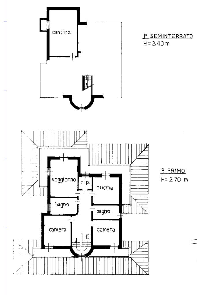
Appena fuori dal centro paese ed in una zona tranquilla, bifamiliare di ampia metratura disposta su tre livelli. Il piano terra ospita la prima unità abitativa. L’ingresso si ha mediante un portico frontale che conduce al locale disimpegno che suddivide i locali. La zona giorno è costituita da ampio soggiorno impreziosito dal camino ventilato suddiviso da un basso muretto dalla cucina abitabile. Inoltre, è presente un ulteriore locale utilizzato come sala da pranzo. Invece, la zona notte conta di una camera da letto ed un bagno ristrutturato nel 2005 con spaziosa doccia e finestra. Invece, il piano primo accessibile mediante una comoda ed elegante scala in marmo, è costituito dalla seconda unità abitativa. Attualmente, è utilizzata come zona notte ed è costituita da quattro camere da letto, due delle quali con accesso su due balconcini rivolti verso il retro della casa e le altre due con accesso sul balcone che si estende lungo parte della facciata e laterale della casa. E’ presente un bagno con vasca e finestra. Inoltre, una delle camere ha un bagno con vasca idromassaggio ed un locale cabina armadio. Una delle camere ha la predisposizione per gli attacchi cucina. Invece, il locale seminterrato accessibile sia dall’esterno che mediante elegante scala in marmo, ospita un elegante tavernetta impreziosita da stufa a legna, un locale cantina, un bagno di servizio e due spaziosi box auto rispettivamente di 24 mq e 20 mq. Il riscaldamento è dato da due caldaie a condensazione a metano sostituite nel 2022 e nel 2023 mediante termoconvettori. Il riscaldamento dei due appartamenti è separato. Inoltre, sono presenti le canne fumarie e il camino. Gli infissi sono in PVC e dotati di doppi vetri, mentre le persiane sono in alluminio. Sono presenti le zanzariere a scomparsa con guida a carroarmato. Sui muri è presente l’intonaco con stucco veneziano. Il tetto è stato coibentato con lana di roccia e sono presenti tre fosse biologiche, due delle quali con scarico in fogna. Esternamente, è presente un ampio giardino che si estende nella parte frontale e sul retro della casa per una metratura totale di 1.600 mq circa. Inoltre, è presente un contratto per acqua irrigua che offre la possibilità di bagnare il giardino, attualmente a circa 70 euro all’anno. L’accesso alla proprietà si ha mediante cancello automatico che mediante accesso pedonale.

Mostra tutto

Nelle vicinanze

Trasporto pubblico Trasporto pubblico
Alice Castello (Via Borgo D'Ale 16)
Alice Castello (Via Borgo D'Ale 16)
710 m
Alice Castello (P.zza Ballario- Fronte Pensilina)
Alice Castello (P.zza Ballario- Fronte Pensilina)
730 m
Ricariche auto elettriche Ricariche auto elettriche
Borgo d'Ale Matteotti | BeCharge
2,8 Km
Farmacia Farmacia
Farmacia Dott. Miglietta
770 m
Farmacia Ferretti
2,7 Km
Negozi Negozi
C'era una volta di Sacco Dario
530 m
Ristoranti Ristoranti
Bar Ristorante Pizzeria La Muraglia Cinese
740 m
Pinseria e Dintorni Casa Drusù
970 m
Agriturismo "Il Ciliegio"
2,5 Km
Mostra tutto

Caratteristiche

Rif.:
61153946
Piano:
3 di 3 (Piano su più livelli)
Box:
2
Balconi:
3
Terrazzi:
1
Camere da letto:
4
Mostra tutto
Prezzo Prezzo
€ 395.000
Rata mutuo Rata mutuo
€ 1.864 / mese
Spese annue Spese annue
€ 0
Proponi il tuo prezzoProponi il tuo prezzo

Classe Energetica

D
D
D
D
D
D
D
D
D
EP globale non rinnovabile:
99.54 kW h/m² anno
EP globale rinnovabile:
1.61 kW h/m² anno
EP invernale del fabbricato:
EP estiva del fabbricato:
Anno di costruzione:
1995
Riscaldamento:
Autonomo
Tipo impianto:
Ad aria
Tipo alimentazione:
Metano

Ti interessa visionare l'immobile?

Fissa un appuntamento  Fissa un appuntamento

Richiedi informazioni

Clicca su Leggi per aprire l'informativa
* Questi campi sono obbligatori

Calcola il tuo mutuo

Semplice e senza impegno
Anticipo

( % )
Mutuo

( % )

pochi semplici passi

inserisci i tuoi dati
Questionario completato
Grazie per aver richiesto un appuntamento senza impegno con un nostro Consulente del Credito e Assicurativo.

Hai inserito correttamente tutti i dati necessari e a breve riceverai una e-mail con un link da convalidare per inviare i tuoi dati.
Affiliato
Studio Cavaglia' Sas
Via Mainelli, 17 13881 Cavaglià (BI)

Il nostro staff


  • Francesco Capietto
    Affiliato

  • Marina Cofano
    Coordinatrice

  • Cristina Gabriela Paraschiveanu
    Collaboratrice

  • Fabrizio Ariti
    Responsabile
Via Mainelli, 17 13881 Cavaglià (BI)
Zona: Cavaglia' - Viverone - Roppolo-Dorzano-Piverone-Alice Castello
Mostra su mappa
Orari: Dal Lunedì al Venerdì dalle 9:00 alle 12.30 e dalle 14.30 alle 19:30. Il Sabato dalle 9.00 alle 12.30 e dalle 14.30 alle 18.30
Affiliato
Studio Cavaglia' Sas
Via Mainelli, 17 13881 Cavaglià (BI)

2025 Tecnocasa Franchising S.p.A. - P. IVA 08365160152 - Via Monte Bianco 60/A 20089 Rozzano (MI). Ogni agenzia ha un proprio titolare ed è autonoma. Privacy policy | Policy utilizzo | Cookie policy