Casa semindipendente in vendita

Alice Castello, Via Vincenzo Gioberti
€ 82.000
Prezzo aggiornato
6 locali 6 locali
196 Mq 196 Mq
2 bagni 2 bagni

Casa semindipendente in vendita

Alice Castello, Via Vincenzo Gioberti

Descrizione annuncio

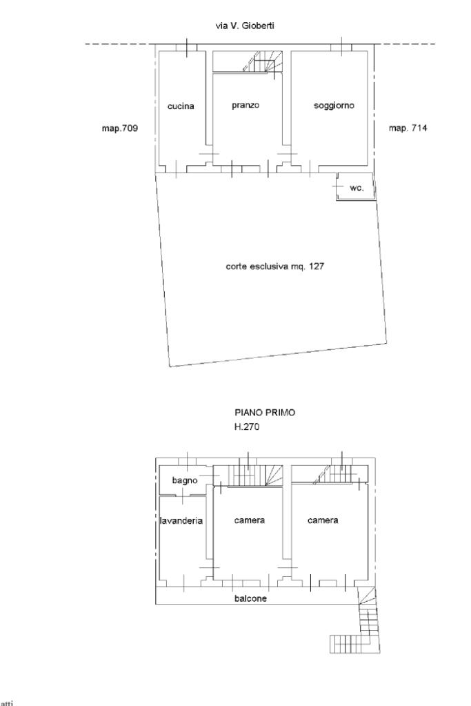
In centro paese, casa semindipendente disposta su due livelli. Il piano terra è composto da cucina abitabile, separata dal soggiorno. Completa il piano una camera da letto e il bagno con vasca e finestra. Invece, il piano primo raggiungibile mediante scala esterna ed interna, è costituito dalla zona notte. Quest’ultima conta di due camere da letto, un soggiorno ed un bagno. Inoltre, è presente un balcone che si estende lungo la facciata della casa. Il riscaldamento è autonomo a metano mediante caldaia a condensazione sostituita circa 15 anni fa ed è presente anche la canna fumaria. Gli infissi sono in alluminio e alcuni con vetri doppi. A corredo della proprietà vi è un’area cortilizia, in parte utilizzata ad orto per una metratura di 127 mq circa ed un ripostiglio esterno. L’accesso alla proprietà si ha mediante un cancello privato. Il tetto si presenta in buone condizioni di manutenzione, revisionato circa 12 anni fa.

Mostra tutto

Nelle vicinanze

Trasporto pubblico Trasporto pubblico
Alice Castello (P.zza Ballario-Pensilina)
Alice Castello (P.zza Ballario-Pensilina)
130 m
Alice Castello (P.zza Ballario- Fronte Pensilina)
Alice Castello (P.zza Ballario- Fronte Pensilina)
150 m
Ricariche auto elettriche Ricariche auto elettriche
Borgo d'Ale Matteotti | BeCharge
2,6 Km
Farmacia Farmacia
Farmacia Dott. Miglietta
190 m
Farmacia Ferretti
2,5 Km
Negozi Negozi
C'era una volta di Sacco Dario
290 m
Ristoranti Ristoranti
Bar Ristorante Pizzeria La Muraglia Cinese
270 m
Pinseria e Dintorni Casa Drusù
980 m
Agriturismo "Il Ciliegio"
2,4 Km
Mostra tutto

Caratteristiche

Rif.:
61120200
Piano:
2 di 2 (Piano su più livelli)
Balconi:
1
Camere da letto:
3
Arredamento:
Assente
Condizionamento:
Assente
Mostra tutto
Prezzo Prezzo
€ 82.000
Rata mutuo Rata mutuo
€ 387 / mese
Spese annue Spese annue
€ 0
Proponi il tuo prezzoProponi il tuo prezzo

Classe Energetica

G
G
G
G
G
G
G
G
G
EP globale non rinnovabile:
274.46 kW h/m² anno
EP globale rinnovabile:
38.46 kW h/m² anno
EP invernale del fabbricato:
EP estiva del fabbricato:
Anno di costruzione:
1950
Riscaldamento:
Autonomo
Tipo impianto:
A radiatori
Tipo alimentazione:
Metano

Prezzo ridotto di €1 (8%%)

Ti interessa visionare l'immobile?

Fissa un appuntamento  Fissa un appuntamento

Richiedi informazioni

Clicca su Leggi per aprire l'informativa
* Questi campi sono obbligatori

Calcola il tuo mutuo

Semplice e senza impegno
Anticipo

( % )
Mutuo

( % )

pochi semplici passi

inserisci i tuoi dati
Questionario completato
Grazie per aver richiesto un appuntamento senza impegno con un nostro Consulente del Credito e Assicurativo.

Hai inserito correttamente tutti i dati necessari e a breve riceverai una e-mail con un link da convalidare per inviare i tuoi dati.
Affiliato
Studio Cavaglia' Sas
Via Mainelli, 17 13881 Cavaglià (BI)

Il nostro staff


  • Francesco Capietto
    Affiliato

  • Marina Cofano
    Coordinatrice

  • Cristina Gabriela Paraschiveanu
    Collaboratrice

  • Fabrizio Ariti
    Responsabile
Via Mainelli, 17 13881 Cavaglià (BI)
Zona: Cavaglia' - Viverone - Roppolo-Dorzano-Piverone-Alice Castello
Mostra su mappa
Orari: Dal Lunedì al Venerdì dalle 9:00 alle 12.30 e dalle 14.30 alle 19:30. Il Sabato dalle 9.00 alle 12.30 e dalle 14.30 alle 18.30
Affiliato
Studio Cavaglia' Sas
Via Mainelli, 17 13881 Cavaglià (BI)

2026 Tecnocasa Franchising S.p.A. - P. IVA 08365160152 - Via Monte Bianco 60/A 20089 Rozzano (MI). Ogni agenzia ha un proprio titolare ed è autonoma. Privacy policy | Policy utilizzo | Cookie policy