Quadrilocale in vendita

Alice Castello, Via Roma
€ 78.000
4 locali 4 locali
176 Mq 176 Mq
1 bagno 1 bagno

Quadrilocale in vendita

Alice Castello, Via Roma

Descrizione annuncio

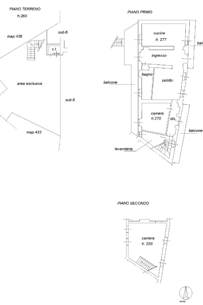
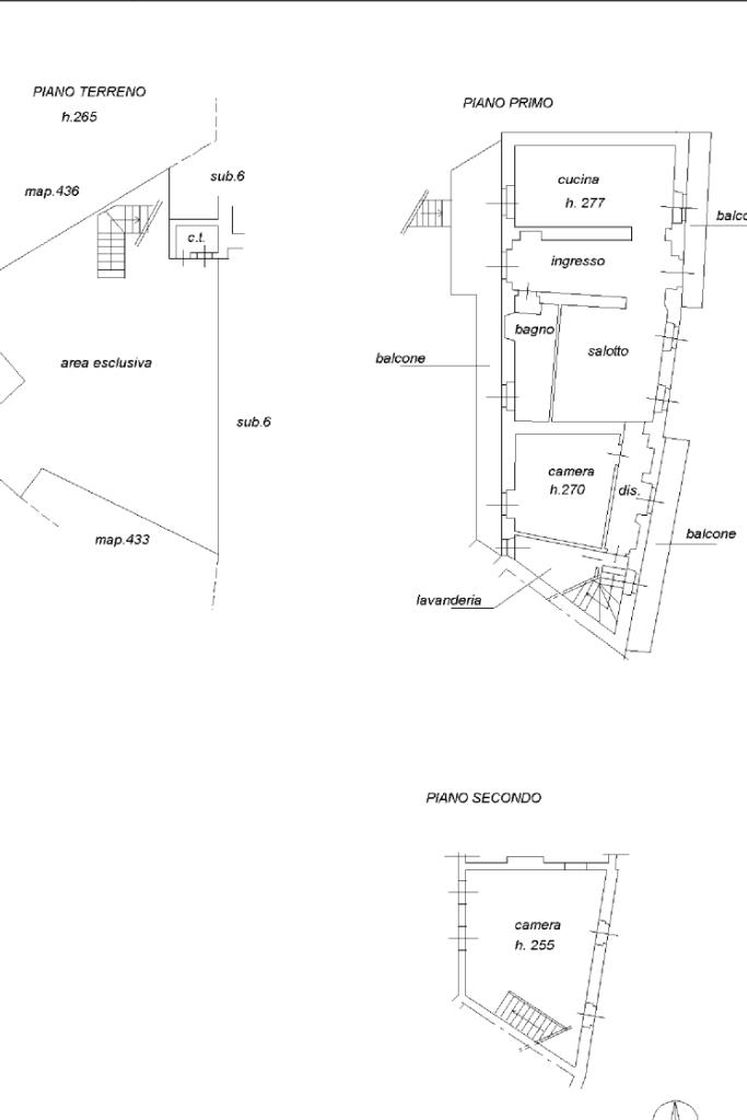
In centro paese, appartamento situato al piano primo di una casa semindipendente ristrutturato nel 2004 e disposto su due livelli. L’accesso si ha mediante una scala esterna che conduce al balcone situato di fronte alla casa. L’ingresso dà su un locale disimpegno che divide la zona giorno in due locali separati. Quest’ultima è composta da una cucina abitabile e da un soggiorno. Invece, la zona notte è composta da una camera da letto ed un bagno con vasca e finestra. Completa il piano un locale utilizzato come sgombero. Sono presenti due balconi. Invece, il piano secondo accessibile mediante una scala interna ospita un locale mansardato. Il riscaldamento è autonomo a metano ed è presente la canna fumaria. Gli infissi sono dotati di doppi vetri. Il tetto è stato rifatto ed anche impianto elettrico ed idraulico. Completa la proprietà un cortile ad uso esclusivo.

Mostra tutto

Nelle vicinanze

Trasporto pubblico Trasporto pubblico
Alice Castello (P.zza Ballario-Pensilina)
Alice Castello (P.zza Ballario-Pensilina)
60 m
Alice Castello (P.zza Ballario- Fronte Pensilina)
Alice Castello (P.zza Ballario- Fronte Pensilina)
60 m
Ricariche auto elettriche Ricariche auto elettriche
Borgo d'Ale Matteotti | BeCharge
2,7 Km
Farmacia Farmacia
Farmacia Dott. Miglietta
120 m
Farmacia Ferretti
2,6 Km
Negozi Negozi
C'era una volta di Sacco Dario
200 m
Ristoranti Ristoranti
Bar Ristorante Pizzeria La Muraglia Cinese
190 m
Pinseria e Dintorni Casa Drusù
890 m
Agriturismo "Il Ciliegio"
2,3 Km
Mostra tutto

Caratteristiche

Rif.:
61164086
Piano:
1 di 2 (Piano alto)
Posti auto:
1
Balconi:
2
Terrazzi:
1
Camere da letto:
2
Mostra tutto
Prezzo Prezzo
€ 78.000
Rata mutuo Rata mutuo
€ 368 / mese
Spese annue Spese annue
€ 0
Proponi il tuo prezzoProponi il tuo prezzo

Classe Energetica

F
F
F
F
F
F
F
F
F
EP globale non rinnovabile:
173.66 kW h/m² anno
EP globale rinnovabile:
2.28 kW h/m² anno
EP invernale del fabbricato:
EP estiva del fabbricato:
Anno di costruzione:
1900
Riscaldamento:
Autonomo
Tipo impianto:
A radiatori
Tipo alimentazione:
Metano

Ti interessa visionare l'immobile?

Fissa un appuntamento  Fissa un appuntamento

Richiedi informazioni

Clicca su Leggi per aprire l'informativa
* Questi campi sono obbligatori

Calcola il tuo mutuo

Semplice e senza impegno
Anticipo

( % )
Mutuo

( % )

pochi semplici passi

inserisci i tuoi dati
Questionario completato
Grazie per aver richiesto un appuntamento senza impegno con un nostro Consulente del Credito e Assicurativo.

Hai inserito correttamente tutti i dati necessari e a breve riceverai una e-mail con un link da convalidare per inviare i tuoi dati.
Affiliato
Studio Cavaglia' Sas
Via Mainelli, 17 13881 Cavaglià (BI)

Il nostro staff


  • Francesco Capietto
    Affiliato

  • Marina Cofano
    Coordinatrice

  • Cristina Gabriela Paraschiveanu
    Collaboratrice

  • Fabrizio Ariti
    Responsabile
Via Mainelli, 17 13881 Cavaglià (BI)
Zona: Cavaglia' - Viverone - Roppolo-Dorzano-Piverone-Alice Castello
Mostra su mappa
Orari: Dal Lunedì al Venerdì dalle 9:00 alle 12.30 e dalle 14.30 alle 19:30. Il Sabato dalle 9.00 alle 12.30 e dalle 14.30 alle 18.30
Affiliato
Studio Cavaglia' Sas
Via Mainelli, 17 13881 Cavaglià (BI)

2026 Tecnocasa Franchising S.p.A. - P. IVA 08365160152 - Via Monte Bianco 60/A 20089 Rozzano (MI). Ogni agenzia ha un proprio titolare ed è autonoma. Privacy policy | Policy utilizzo | Cookie policy